Soba Orion Defro – Eficiență și Performanță Compactă
Soba Orion Defro, cu putere nominală de 6.7 kW, este alegerea perfectă pentru un sistem de încălzire eficient, ecologic și economic. Datorită tehnologiilor avansate și a designului modern, aceasta asigură o încălzire optimă, ideală pentru încăperi de dimensiuni medii, cu un consum redus de combustibil și emisii minime.
Eficiență Ridicată și Performanță Superioară
- Clasa energetică A+ – pentru economisirea energiei și performanță excelentă.
- Eficiență maximă de 90% – utilizare optimă a energiei și minimizarea pierderilor de căldură.
- Eficiență medie: 81.2% – combustie optimă, pentru un confort termic constant.
- Emisii CO reduse (0,06%) – soluție ecologică, cu impact redus asupra mediului.
- Temperatura gaze evacuare: 244°C – ardere eficientă, cu emisii controlate.
Design Modern și Funcțional
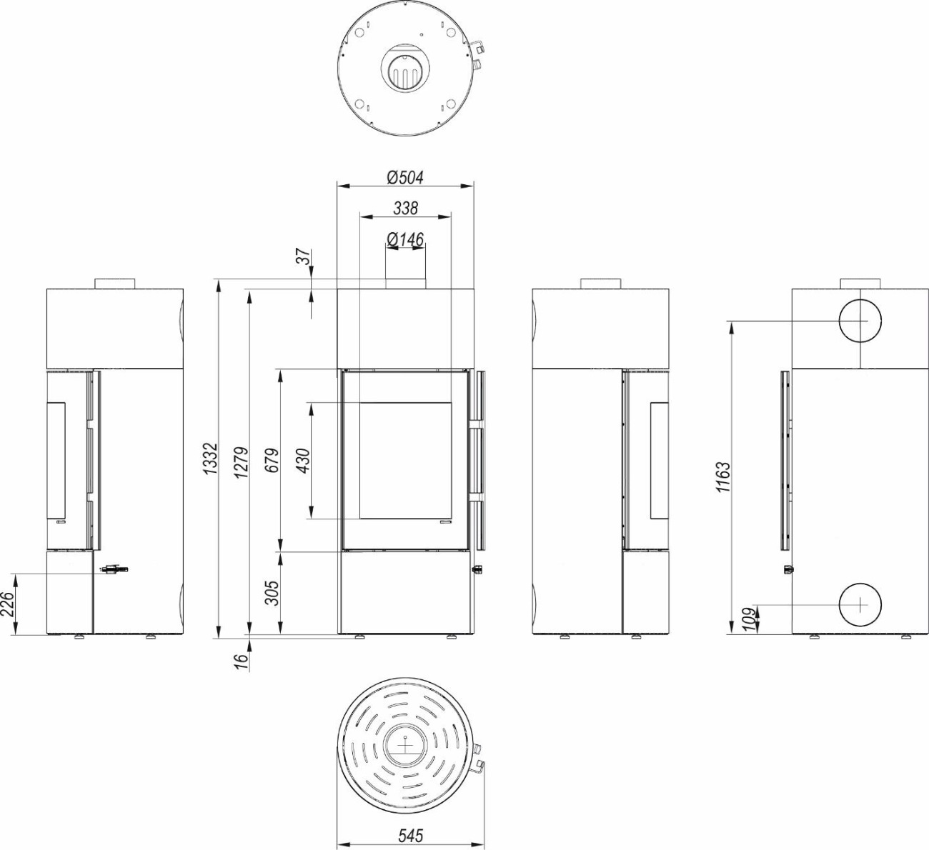
- Ușă mare (504 x 679 mm) – pentru o vizibilitate clară a flăcărilor și un aspect elegant.
- Lungime lemne: 35 cm – perfectă pentru o ardere de durată.
- Sticlă rezistentă la temperaturi înalte – siguranță și estetică superioară.
- Elemente din oțel inoxidabil – pentru un design rafinat și durabil.
Instalare Ușoară și Control Precizat
- Evacuare flexibilă – poate fi montată pe partea superioară sau posterioară, adaptabilă diverselor configurații.
- Priză aer proaspat – îmbunătățește arderea și eficiența energetică.
- Sistem de control al admisiei aerului – reglează fluxul de aer pentru o combustie optimă.
- Mâner din inox – design ergonomic și funcțional.
Specificații Tehnice
- Putere nominală: 6.7 kW
- Gama de putere: 2.6 – 7.9 kW
- Eficiență medie: 81.2%
- Diametru evacuare: 150 mm
- Temperatura gaze evacuare: 244°C
- Lungime lemne: 35 cm
- Greutate: cca 124 kg
- Garanție: 5 ani






